Home
About
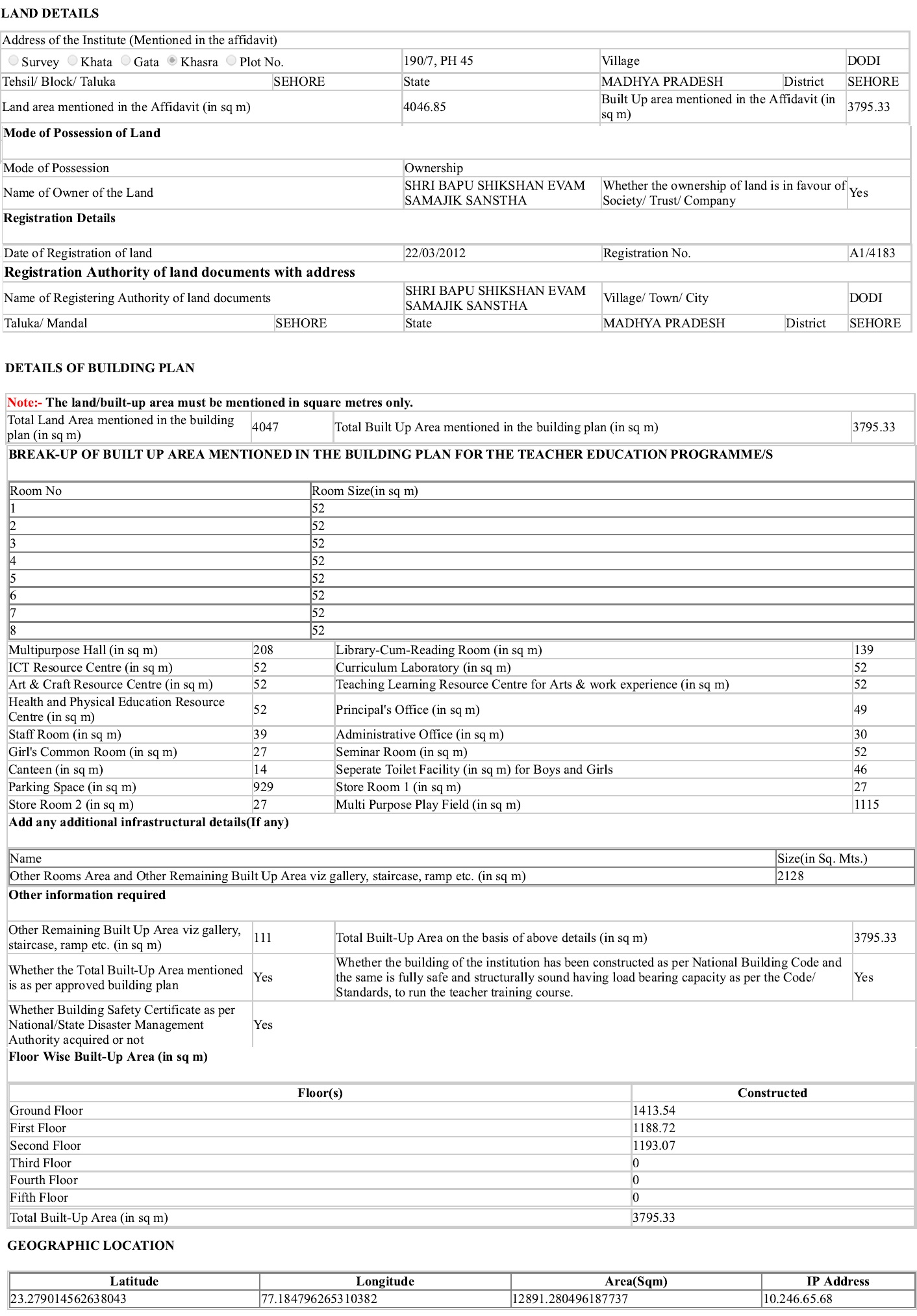
Instructional Facilities
infrastructure
Approved Course
MANDATORY DISCLOSURES
faculty
Attendance
contact us
Infrastructure